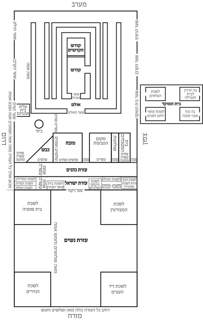
[א] הַר הַבַּיִת, וְהוּא הַר הַמּוֹרִיָּה, הָיָה חֲמֵשׁ מֵאוֹת אַמָּה עַל חֲמֵשׁ מֵאוֹת אַמָּה, וְהָיָה מֻקָּף חוֹמָה, וְכֵיפִין עַל גַּבֵּי כֵּיפִין הָיוּ בְּנוּיוֹת מִתַּחְתָּיו מִפְּנֵי אֹהֶל הַטֻּמְאָה, וְכֻלּוֹ הָיָה מְקֹרֶה, סְטָיו לִפְנִים מִסְּטָיו. [ב] וַחֲמִשָּׁה שְׁעָרִים הָיוּ לוֹ: אֶחָד מִן הַמַּעֲרָב, וְאֶחָד מִן הַמִּזְרָח, וְאֶחָד מִן הַצָּפוֹן, וּשְׁנַיִם מִן הַדָּרוֹם. רֹחַב כָּל שַׁעַר עֶשֶׂר אַמּוֹת וְגָבְהוֹ עֶשְׂרִים, וְיֵשׁ לָהֶן דְּלָתוֹת.
א. וְכֵיפִין עַל גַּבֵּי כֵּיפִין הָיוּ בְּנוּיוֹת מִתַּחְתָּיו וכו'. הר הבית היה עומד על גבי שתי קומות של כיפות שהיו בנויות כך ששני רגלי הכיפות בקומה העליונה עומדים על גג הכיפות שבקומה התחתונה. באופן זה בכל מקום היה חלל שהפסיק וחצץ בין טומאה בקרקע להר הבית (ראה הלכות פרה ג,א). וְכֻלּוֹ הָיָה מְקוֹרֶה. כל היקף הר הבית. סְטָיו לִפְנִים מִסְּטָיו. שדרת עמודים כפולה שעליה היה מונח הקירוי.
[ג] לִפְנִים מִמֶּנּוּ – סוֹרֵג מַקִּיף סָבִיב, גָּבְהוֹ עֲשָׂרָה טְפָחִים, וְלִפְנִים מִן הַסּוֹרֵג – הַחֵיל, גָּבְהוֹ עֶשֶׂר אַמּוֹת, וְעָלָיו הוּא אוֹמֵר בַּקִּינוֹת: "וַיַּאֲבֶל חֵל וְחוֹמָה" (איכה ב,ח) – זוֹ חוֹמַת הָעֲזָרָה.
ג. לִפְנִים מִמֶּנּוּ. מכותל הר הבית. סוֹרֵג. מחיצה עשויה כסבכה. חֵל וְחוֹמָה. חומה קטנה (החיל), וחומה גדולה (חומת העזרה).
[ד] לִפְנִים מִן הַחֵיל – הָעֲזָרָה. וְכָל הָעֲזָרָה הָיְתָה אֹרֶךְ מֵאָה וּשְׁמוֹנִים וָשֶׁבַע עַל רֹחַב מֵאָה וּשְׁלֹשִׁים וְחָמֵשׁ. וְשִׁבְעָה שְׁעָרִים הָיוּ לָהּ: שְׁלֹשָׁה מִן הַצָּפוֹן סְמוּכִין לַמַּעֲרָב, וּשְׁלֹשָׁה מִן הַדָּרוֹם סְמוּכִין לַמַּעֲרָב, וְאֶחָד בַּמִּזְרָח מְכֻוָּן כְּנֶגֶד בֵּית קֹדֶשׁ הַקֳּדָשִׁים בָּאֶמְצַע.
[ה] כָּל שַׁעַר מֵהֶן הָיָה רָחְבּוֹ עֶשֶׂר אַמּוֹת וְגָבְהוֹ עֶשְׂרִים אַמָּה, וְהָיוּ לוֹ דְּלָתוֹת מְחֻפּוֹת זָהָב, חוּץ מִשַּׁעַר מִזְרָחִי שֶׁהָיָה נְחֹשֶׁת דּוֹמָה לְזָהָב, וְשַׁעַר זֶה הוּא הַנִּקְרָא שַׁעַר הָעֶלְיוֹן, וְהוּא הַנִּקְרָא שַׁעַר נִיקָנוֹר.
ה. וְשַׁעַר זֶה הוּא הַנִּקְרָא שַׁעַר הָעֶלְיוֹן. נקרא כך כיוון שהיה גבוה (בחמש עשרה מדרגות) מעזרת נשים (הלכות כלי המקדש ז,ו). וְהוּא הַנִּקְרָא שַׁעַר נִיקָנוֹר. על שם האיש שתרם את הדלתות (לסיפור המעשה ראה בבלי יומא לח,א).
[ו] הָעֲזָרָה לֹא הָיְתָה מְכֻוֶּנֶת בְּאֶמְצַע הַר הַבַּיִת, אֶלָּא רְחוֹקָה מִדְּרוֹם הַר הַבַּיִת יָתֵר מִכָּל הָרוּחוֹת וּקְרוֹבָה לְמַעֲרָבוֹ יָתֵר מִכָּל הָרוּחוֹת, וּבֵינָהּ וּבֵין הַצָּפוֹן יָתֵר מִמַּה שֶּׁבֵּינָהּ וּבֵין הַמַּעֲרָב, וּבֵינָהּ וּבֵין הַמִּזְרָח יָתֵר מִמַּה שֶּׁבֵּינָהּ וּבֵין הַצָּפוֹן.
[ז] וְלִפְנֵי הָעֲזָרָה בַּמִּזְרָח הָיְתָה עֶזְרַת הַנָּשִׁים, וְהִיא הָיְתָה אֹרֶךְ מֵאָה וּשְׁלֹשִׁים וְחָמֵשׁ עַל רֹחַב מֵאָה וּשְׁלֹשִׁים וְחָמֵשׁ. וְאַרְבַּע לְשָׁכוֹת הָיוּ בְּאַרְבַּע מִקְצוֹעוֹתֶיהָ שֶׁל אַרְבָּעִים אַרְבָּעִים אַמָּה, וְלֹא הָיוּ מְקוֹרוֹת, וְכֵן הֵן עֲתִידִין לִהְיוֹת.
ז. עֶזְרַת הַנָּשִׁים. נקראה כך מכיוון שלפנים ממנה לא היו נכנסות נשים בדרך כלל. מִקְצוֹעוֹתֶיהָ. פינותיה. וְלֹא הָיוּ מְקוֹרוֹת וְכֵן הֵן עֲתִידִין לִהְיוֹת. כפי שנאמר בנבואת יחזקאל שהלשכות בפינות עזרת הנשים יהיו "קטֻרות" (יחזקאל מו,כב), כלומר ללא תקרה.
[ח] וּמַה הֵן מְשַׁמְּשׁוֹת? דְּרוֹמִית מִזְרָחִית – לִשְׁכַּת הַנְּזִירִין, שֶׁשָּׁם מְבַשְּׁלִין אֶת שַׁלְמֵיהֶם וּמְגַלְּחִין אֶת שְׂעָרָן. מִזְרָחִית צְפוֹנִית – לִשְׁכַּת דִּיר הָעֵצִים, שֶׁשָּׁם כֹּהֲנִים בַּעֲלֵי מוּמִין מְתַלְּעִין בָּעֵצִים, שֶׁכָּל עֵץ שֶׁנִּמְצָא בּוֹ תּוֹלַעַת – פָּסוּל. צְפוֹנִית מַעֲרָבִית – לִשְׁכַּת הַמְצֹרָעִים. מַעֲרָבִית דְּרוֹמִית – בָּהּ הָיוּ נוֹתְנִין יַיִן וָשֶׁמֶן, וְהִיא הָיְתָה נִקְרֵאת לִשְׁכַּת בֵּית שְׁמַנְיָה.
ח. שֶׁשָּׁם מְבַשְּׁלִין אֶת שַׁלְמֵיהֶם וּמְגַלְּחִין אֶת שְׂעָרָן. הנזיר היה משליך את שערו באש תחת הסיר שבו התבשל איל השלמים שאותו הביא כשסיים את נזירותו (הלכות נזירות ח,ב-ג). שֶׁשָּׁם כֹּהֲנִים בַּעֲלֵי מוּמִין מְתַלְּעִין בָּעֵצִים. מסירים את העצים המתולעים, ומכיוון שבעלי מומים פסולים לעבודות הקרבנות נתנו להם עבודה זו. שֶׁכָּל עֵץ שֶׁנִּמְצָא בּוֹ תּוֹלַעַת פָּסוּל. למערכות האש שעל המזבח (הלכות איסורי מזבח ו,ב). לִשְׁכַּת הַמְצֹרָעִים. שם המצורעים טבלו כשבאו למקדש להביא את קרבנותיהם (הלכות מחוסרי כפרה ד,א). יַיִן וָשֶׁמֶן. לצורך המנחות והנסכים.
[ט] עֶזְרַת הַנָּשִׁים הָיְתָה מֻקֶּפֶת כְּצֻצְטְרָה כְּדֵי שֶׁיִּהְיוּ הַנָּשִׁים רוֹאוֹת מִלְּמַעְלָן וְהָאֲנָשִׁים מִלְּמַטָּן כְּדֵי שֶׁלֹּא יְהוּ מְעֻרְבָּבִין.
וּבַיִת גָּדוֹל הָיָה בְּצַד הָעֲזָרָה בִּצְפוֹנָהּ מִבַּחוּץ בֵּין הָעֲזָרָה וְהַחֵיל, וְהָיָה בָּנוּי כִּפָּה וּמֻקָּף רוֹבָדִין שֶׁל אֶבֶן, וְהוּא הָיָה נִקְרָא בֵּית הַמּוֹקֵד. וּשְׁנֵי פְּתָחִים הָיוּ לוֹ, אֶחָד פָּתוּחַ לָעֲזָרָה וְאֶחָד פָּתוּחַ לַחֵיל. [י] וְאַרְבַּע לְשָׁכוֹת הָיוּ בּוֹ, שְׁתַּיִם קֹדֶשׁ וּשְׁתַּיִם חֹל, וְרָאשֵׁי פְּסִיפָסִין מַבְדִּילִין בֵּין הַקֹּדֶשׁ וְהַחֹל.
וּמֶה הָיוּ מְשַׁמְּשׁוֹת? מַעֲרָבִית דְּרוֹמִית – לִשְׁכַּת הַטְּלָאִים. דְּרוֹמִית מִזְרָחִית – לִשְׁכַּת עוֹשֵׂי לֶחֶם הַפָּנִים. מִזְרָחִית צְפוֹנִית – בָּהּ גָּנְזוּ בֵּית חַשְׁמוֹנַאי אַבְנֵי הַמִּזְבֵּחַ שֶׁשִּׁקְּצוּם מַלְכֵי יָוָן. צְפוֹנִית מַעֲרָבִית – בָּהּ יוֹרְדִין לְבֵית הַטְּבִילָה.
ט. מֻקֶּפֶת כְּצֻצְטְרָה כְּדֵי שֶׁיִּהְיוּ הַנָּשִׁים רוֹאוֹת וכו'. בעזרת הנשים היו עורכים 'שמחת בית השואבה' בהשתתפות גברים ונשים, וכדי למנוע התערבות שלהם יחד, עשו סביב לעזרת נשים יציעים מוגבהים על גבי עמודים שעליהם היו הנשים עומדות (ראה משנה סוכה ה,א ופה"מ שם).
וְהָיָה בָּנוּי כִּפָּה. תקרה מעוגלת. וּמֻקָּף רוֹבָדִין שֶׁל אֶבֶן. אצטבאות של אבן ועליהן היו זקני הכהנים ישנים (ראה משנה תמיד א,א).
י. שְׁתַּיִם קֹדֶשׁ. שתי הלשכות הדרומיות שפנו לכיוון העזרה היו קדושות בקדושת העזרה. וְרָאשֵׁי פְּסִיפָסִין. מחיצה קטנה מנוקבת מקנים או מעץ או מאבנים.
לִשְׁכַּת הַטְּלָאִים. בה היו טלאים מבוקרים ממום לצורך הקרבת התמיד. לִשְׁכַּת עוֹשֵׂי לֶחֶם הַפָּנִים. בה הכינו את לחם הפנים. בָּהּ גָּנְזוּ בֵּית חַשְׁמוֹנַאי אַבְנֵי הַמִּזְבֵּחַ שֶׁשִּׁקְּצוּם מַלְכֵי יָוָן. מלכי יוון הקריבו על המזבח לעבודה זרה, וכשניצחו החשמונאים וטיהרו את המקדש, טמנו את אבני המזבח.
[יא] הַיּוֹרֵד לְבֵית הַטְּבִילָה מִלִּשְׁכָּה זוֹ, הָיָה הוֹלֵךְ בַּמְּסִבָּה הַהוֹלֶכֶת תַּחַת הַמִּקְדָּשׁ כֻּלּוֹ, וְהַנֵּרוֹת דּוֹלְקוֹת מִכָּאן וּמִכָּאן, עַד שֶׁמַּגִּיעַ לְבֵית הַטְּבִילָה. וּמְדוּרָה הָיְתָה שָׁם, וּבֵית הַכִּסֵּא שֶׁל כָּבוֹד, וְזֶהוּ כְּבוֹדוֹ: מְצָאוֹ נָעוּל – בְּיָדוּעַ שֶׁיֵּשׁ שָׁם אָדָם.
יא. בַּמְּסִבָּה. דרך סיבובית. עַד שֶׁמַּגִּיעַ לְבֵית הַטְּבִילָה. המסיבה שהייתה עוברת תחת המקדש כולו הייתה יוצאת למקום בהר הבית מחוץ לעזרה שבו היה מקווה טהרה (המפרש על תמיד כו,א).
[יב] אֹרֶךְ הָעֲזָרָה מִן הַמַּעֲרָב לַמִּזְרָח – מֵאָה וּשְׁמוֹנִים וָשֶׁבַע, וְזֶה הוּא חֶשְׁבּוֹנָם: מִכֹּתֶל מַעֲרָבִי שֶׁל עֲזָרָה עַד כֹּתֶל הַהֵיכָל אַחַת עֶשְׂרֵה אַמָּה; וְאֹרֶךְ הַהֵיכָל כֻּלּוֹ מֵאָה אַמָּה; בֵּין הָאוּלָם וְלַמִּזְבֵּחַ עֶשְׂרִים וּשְׁתַּיִם; הַמִּזְבֵּחַ שְׁלֹשִׁים וּשְׁתַּיִם; מְקוֹם דְּרִיסַת רַגְלֵי הַכֹּהֲנִים, וְהוּא הַנִּקְרָא עֶזְרַת הַכֹּהֲנִים, אַחַת עֶשְׂרֵה אַמָּה; מְקוֹם דְּרִיסַת רַגְלֵי יִשְׂרָאֵל, וְהוּא הַנִּקְרָא עֶזְרַת יִשְׂרָאֵל, אַחַת עֶשְׂרֵה אַמָּה.
יב. וְאֹרֶךְ הַהֵיכָל כֻּלּוֹ מֵאָה אַמָּה. לעיל ד,ד. הַמִּזְבֵּחַ שְׁלֹשִׁים וּשְׁתַּיִם. לעיל ב,ה.
[יג] וְרֹחַב הָעֲזָרָה מִן הַצָּפוֹן לַדָּרוֹם – מֵאָה וּשְׁלֹשִׁים וְחָמֵשׁ, וְזֶה הוּא חֶשְׁבּוֹנָם: מִכֹּתֶל צְפוֹנִי עַד בֵּית הַמִּטְבָּחַיִם שְׁמוֹנֶה אַמּוֹת; בֵּית הַמִּטְבָּחַיִם שְׁתֵּים עֶשְׂרֵה אַמָּה וּמֶחֱצָה, וְשָׁם תּוֹלִין וּמַפְשִׁיטִין אֶת הַקֳּדָשִׁים; וּבְצִדּוֹ [יד] מְקוֹם הַשֻּׁלְחָנוֹת שְׁמוֹנֶה אַמּוֹת, וּבוֹ שֻׁלְחָנוֹת שֶׁל שַׁיִשׁ שֶׁמַּנִּיחִין עֲלֵיהֶן הַנְּתָחִים וּמְדִיחִין אֶת הַבָּשָׂר לְבַשְּׁלוֹ, וּשְׁמוֹנָה שֻׁלְחָנוֹת הָיוּ; וּבְצַד מְקוֹם הַשֻּׁלְחָנוֹת מְקוֹם הַטַּבָּעוֹת עֶשְׂרִים וְאַרְבַּע אַמָּה, וְשָׁם שׁוֹחֲטִין אֶת הַקֳּדָשִׁים; [טו] וּבֵין מְקוֹם הַטַּבָּעוֹת וְהַמִּזְבֵּחַ שְׁמוֹנֶה אַמּוֹת; וְהַמִּזְבֵּחַ שְׁלֹשִׁים וּשְׁתַּיִם; וְהַכֶּבֶשׁ שְׁלֹשִׁים; וּבֵין הַכֶּבֶשׁ וּלְכֹתֶל דְּרוֹמִי שְׁתֵּים עֶשְׂרֵה אַמָּה וּמֶחֱצָה.
מִכֹּתֶל צְפוֹנִי שֶׁל עֲזָרָה עַד כֹּתֶל הַמִּזְבֵּחַ, שֶׁהוּא רֹחַב שִׁשִּׁים וּמֶחֱצָה, וּכְנֶגְדּוֹ מִכֹּתֶל הָאוּלָם עַד כֹּתֶל מִזְרָחִי שֶׁל עֲזָרָה, שֶׁהוּא אֹרֶךְ שִׁשָּׁה וְשִׁבְעִים – [טז] כָּל הַמְרֻבָּע הַזֶּה הוּא הַנִּקְרָא צָפוֹן, וְהוּא הַמָּקוֹם שֶׁשּׁוֹחֲטִין בּוֹ קָדְשֵׁי קָדָשִׁים.
יג. בֵּית הַמִּטְבָּחַיִם. מבנה שבו היו עמודים ובראשם ווים שעליהם תלו את בהמות הקדשים לאחר השחיטה, על מנת להפשיט את עורן.
יד. שֻׁלְחָנוֹת שֶׁל שַׁיִשׁ. השיש מצנן את הבשר ומונע ממנו להתקלקל (פה"מ תמיד ג,ה). הַנְּתָחִים. חתיכות הבשר. וּמְדִיחִין אֶת הַבָּשָׂר לְבַשְּׁלוֹ. רוחצים את הבשר המתבשל לפני בישולו. מְקוֹם הַטַּבָּעוֹת. הטבעות היו קבועות ברצפה, ובהן היו לוכדים את רגלי הבהמה בשעת השחיטה (פה"מ מידות ג,ה; ולדעת רש"י יומא טז,ב בטבעות נתנו את צוואר הבהמה בשעת שחיטה).
טו. וְהַכֶּבֶשׁ שְׁלֹשִׁים. לעיל ב,יג.
עַד כֹּתֶל הַמִּזְבֵּחַ. הצפוני. וּכְנֶגְדּוֹ מִכֹּתֶל הָאוּלָם וכו'. כל השטח שנמצא מצפון למזבח בכל האורך שמתחילת העזרה (במזרח) עד האולם (במערב).
טז. הוּא הַנִּקְרָא צָפוֹן וכו'. בתורה נאמר שיש לשחוט את העולה "על ירך המזבח צפונה" (ויקרא א,יא) ומשם נלמד ששחיטת כל קדשי הקדשים כשרה רק בצפון (ראה הלכות מעשה הקרבנות ה,ב-ג).
[יז] שְׁמוֹנֶה לְשָׁכוֹת הָיוּ בְּעֶזְרַת יִשְׂרָאֵל, שָׁלֹשׁ בַּצָּפוֹן וְשָׁלֹשׁ בַּדָּרוֹם. שֶׁבַּדָּרוֹם – לִשְׁכַּת הַמֶּלַח, לִשְׁכַּת הַפַּרְוָה, לִשְׁכַּת הַמְּדִיחִין. לִשְׁכַּת הַמֶּלַח – שָׁם נוֹתְנִין מֶלַח לַקָּרְבָּן. לִשְׁכַּת הַפַּרְוָה – שָׁם מוֹלְחִין עוֹרוֹת הַקֳּדָשִׁים, וְעַל גַּגָּהּ הָיָה בֵּית טְבִילָה לְכֹהֵן גָּדוֹל בְּיוֹם הַכִּפּוּרִים. לִשְׁכַּת הַמְּדִיחִין – שָׁם הָיוּ מְדִיחִין קִרְבֵי הַקֳּדָשִׁים, וּמִשָּׁם מְסִבָּה עוֹלָה לְגַג בֵּית הַפַּרְוָה.
וְהַשָּׁלֹשׁ שֶׁבַּצָּפוֹן – לִשְׁכַּת הַגָּזִית, לִשְׁכַּת הַגֻּלָּה, לִשְׁכַּת הָעֵץ. לִשְׁכַּת הַגָּזִית – שֶׁבָּהּ סַנְהֶדְרִי גְּדוֹלָה יוֹשֶׁבֶת, וְחֶצְיָהּ הָיָה קֹדֶשׁ וְחֶצְיָהּ חֹל, וְלָהּ שְׁנֵי פְּתָחִים, אֶחָד לַקֹּדֶשׁ וְאֶחָד לַחֹל, וּבַחֲצִי שֶׁל חֹל הָיוּ הַסַּנְהֶדְרִין יוֹשְׁבִין.
לִשְׁכַּת הַגֻּלָּה – שָׁם הָיָה בּוֹר שֶׁמְּמַלְּאִין מִמֶּנּוּ בְּגֻלָּה, וּמִשָּׁם מְסַפְּקִין מַיִם לְכָל הָעֲזָרָה. וְלִשְׁכַּת הָעֵץ הָיְתָה אֲחוֹרֵי שְׁתֵּיהֶן, וְהִיא הָיְתָה לִשְׁכַּת כֹּהֵן גָּדוֹל, וְהִיא הַנִּקְרֵאת לִשְׁכַּת פַּלְהֶדְרִין. וְגַג שְׁלָשְׁתָּן שָׁוָה.
וּשְׁתֵּי לְשָׁכוֹת אֲחֵרוֹת הָיוּ שָׁם בְּעֶזְרַת יִשְׂרָאֵל, אַחַת מִימִין שַׁעַר מִזְרָחִי, וְהִיא לִשְׁכַּת פִּינְחָס הַמַּלְבִּישׁ, וְאַחַת מִשְּׂמֹאלוֹ, וְהִיא לִשְׁכַּת עוֹשֵׂי חֲבִתִּין. וְזוֹ הִיא צוּרַת הַלְּשָׁכוֹת וְהָעֲזָרָה כֻּלָּהּ לְפִי מִדּוֹתֶיהָ:

יז. לִשְׁכַּת הַמֶּלַח שָׁם נוֹתְנִין מֶלַח לַקָּרְבָּן. את כל הקרבנות יש למלוח קודם ההקרבה (הלכות איסורי מזבח ה,יא). לִשְׁכַּת הַפַּרְוָה שָׁם מוֹלְחִין עוֹרוֹת הַקֳּדָשִׁים. עורות חלק מן הקרבנות שייכים לכהנים, כדי שלא יתקלקלו היו מולחים אותם בלשכה זו (לטעם כינוי הלשכה ראה פה"מ מידות ד,ח). וְעַל גַּגָּהּ הָיָה בֵּית טְבִילָה לְכֹהֵן גָּדוֹל בְּיוֹם הַכִּפּוּרִים. כשהחליף הכהן הגדול מבגדי זהב ללבן ומלבן לזהב, היה טובל שם (הלכות עבודת יום הכיפורים ב,ב-ג). לִשְׁכַּת הַמְּדִיחִין שָׁם הָיוּ מְדִיחִין קִרְבֵי הַקֳּדָשִׁים. מלכלוך ההפרשות ומהמזון שטרם התעכל במעיים, לפני שהעלו אותם למזבח (ראה גם הלכות מעשה הקרבנות ו,ו). וּמִשָּׁם מְסִבָּה עוֹלָה וכו'. עלייה סיבובית למקווה שבגג.
וְחֶצְיָהּ הָיָה קֹדֶשׁ וְחֶצְיָהּ חֹל וְלָהּ שְׁנֵי פְּתָחִים וכו'. כל הלשכות שהיו בנויות בקודש (בעזרה) אם פתחם היה לחול (למחוץ לעזרה), דינם כחול. הלשכות הבנויות בחול ופתוחות לקודש דינם קודש (לקמן ו,ז-ח). לשכת הגזית הייתה כולה בתוך העזרה, בקודש, אמנם היו לה שני פתחים: המערבי לחול והמזרחי לקודש, לכן חציה המערבי היה חול וחציה המזרחי היה קודש. וּבַחֲצִי שֶׁל חֹל הָיוּ הַסַּנְהֶדְרִין יוֹשְׁבִין. שהרי אסור לשבת בעזרה (לקמן ז,ו).
בּוֹר שֶׁמְּמַלְּאִין מִמֶּנּוּ בְּגֻלָּה. על ידי גלגל שאיבה. הָיְתָה אֲחוֹרֵי שְׁתֵּיהֶן. צפונית משתיהן. וְגַג שְׁלָשְׁתָּן שָׁוָה. שלוש הלשכות הללו היו צמודות אחת לחברתה, והיה לשלושתן גג משותף.
וְהִיא לִשְׁכַּת פִּינְחָס הַמַּלְבִּישׁ. שם אחסנו את בגדי הכהונה. הלשכה נקראה על שם האדם שהיה ממונה על בגדי הכהונה בתקופה מסוימת (ראה פה"מ שקלים ה,א). וְהִיא לִשְׁכַּת עוֹשֵׂי חֲבִתִּין. שם הכינו את מנחת החביתין שהיה הכהן הגדול מקריב מידי יום (הלכות תמידין ומוספין ג,יח).